キーワードから探す
このメーカーの他のカタログ
木造一貫構造計算プログラム ASTIM
アークデータ研究所
木造一貫構造計算プログラム ASTIM/立体フレーム
アークデータ研究所
壁式ラーメン一貫構造計算プログラム ASHFW
アークデータ研究所
ASCAL(任意形状一貫構造計算プログラム)
アークデータ研究所
adpack-NEO施工図版カタログ
アークデータ研究所
- トップページ
- 株式会社アークデータ研究所 カタログ一覧
- ASDRA(構造図一括作成プログラム)
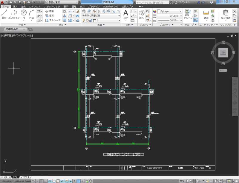
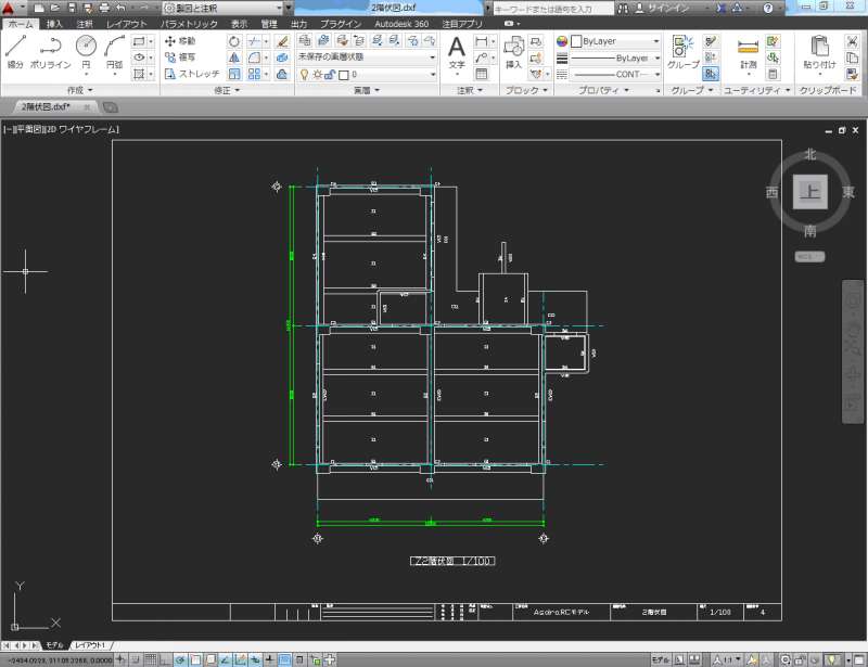
ASDRA(構造図一括作成プログラム)
ASDRA(構造図一括作成プログラム)
他社ソフトとの連動も可能
「ASDRA」はグリッドフリー軸形状の3次元モデルで作成される計算データを基に、自動で構造図データを
"AutoCAD"、"Jw_cad"用に変換し、書き出すプログラムです。
<多様な図面の自動書き出し>
■躯体レベルの表示が可能です。
■部材リストの図面形式の選択が可能です。
■伏図の線種を使い分けることができます。
■各伏図・軸図・各部材リストに対して
共通事項の設定・表示が可能です。

クリックでギャラリーをお気に入りに保存できます