ようこそ
ゲスト
さん
建材ナビに出展する
|
掲載メーカーマイページ
会員登録
ログイン
お気に入り
0
資料請求へ
進む
トラックバース階段|ステアックス株式会社
建材ナビに出展する
|
掲載メーカーマイページ
ようこそ
ゲスト
さん
建材ナビとは?
|
建材ナビの使い方
|
よくある質問
会員登録
ログイン
お気に入り
0
資料請求へ
進む
0
Open Menu
カテゴリーから探す
建築材料
建築資材
工法・技術・システム
震災・防火・災害対策製品
エコロジー関連
医療・福祉・介護設備
セキュリティーシステム
インテリア製品
開口部材
サイン&ディスプレイ・照明・音響
ソフト関連・営業支援ツール
キッチン・バスルーム設備機器
衛生設備機器
冷暖房・空調設備機器
給排水設備機器
外構・エクステリア
土木・道路・公園
メーカー名から探す
あ
い
う
え
お
か
き
く
け
こ
さ
し
す
せ
そ
た
ち
つ
て
と
な
に
ぬ
ね
の
は
ひ
ふ
へ
ほ
ま
み
む
め
も
や
ゆ
よ
ら
り
る
れ
ろ
わ
目的から探す
ニュースリリース
動画
ショールーム
かたなび
Q&A
設計士インタビュー
プロジェクトストーリー
販売・施工代理店募集
すまいリング
新木場特集
【建材ナビ】建築材料・建築資材専門の検索サイト
建築材料
階段材
階段(非住宅・施設)
トラックバース階段
建材を探す
建築材料
建築用資材
工法・技術・システム
用途別・場所別
震災・防火・災害対策製品
エコロジー関連
医療・福祉・介護設備
セキュリティーシステム
インテリア製品
開口部材
サイン・照明・音響
ソフト関連・営業支援ツール
キッチン・住宅設備機器
衛生設備機器
冷暖房・空調設備機器
給排水設備機器
外構・エクステリア
土木・道路・公園
目的から探す
店舗演出・商業施設
住宅・リフォーム
介護・福祉・バリアフリー
ホテル・公共施設
大人のこだわり
メーカー一覧
新規出展企業
カテゴリ
コンテンツ
ニュースリリース
かたなび
ショールームナビ
すまいりんぐ
設計士インタビュー
メーカーインタビュー
プロジェクトストーリー
建材動画チャンネル
建築何でもQ&A
販売・施工代理店募集
サポートサイト
節電・省エネ製品紹介
節電ナビ
建築家ギャラリー
匠ナビ
インテリアギャラリー
グッドリビング
建材を格安で販売
建材アウトレット市場
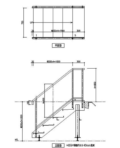
トラックバース階段
倉庫や工場用の調整可能な階段
物流倉庫や工場などの屋外から倉庫までの高さがある部分に適用する昇降階段です。
足元は固定式ではなく据置タイプです。レベル調整ができ、フォークリフトで移動可能です。
■ 画像をクリックでメーカーHPへ
■ 今すぐカタログを見る
PDFカタログ
ショールーム情報を見る
ステアックス株式会社に問い合わせる
すぐ相談・見積依頼・お問合せ
製品画像・施工事例
建築材料
階段材
屋外階段
建築材料
階段材
階段(非住宅・施設)
東京都
美しい
高品質
階段
商業施設
店舗
ホテル
会社情報
ステアックス株式会社
ショールーム情報
https://sankin-g.com/stairx/index.html
〒170-0013
東京都豊島区東池袋4-41-24 東池袋センタービル5F
TEL: 03-5951-1221
FAX: 03-5951-2880
すぐ相談する
■ ステアックス株式会社の取扱製品
特殊階段
SS階段
特殊階段【稲妻ササラ階段】
PC階段【踏段タイプ】
特殊階段【らせん階段】
■ このカテゴリの他の製品
屋外鉄骨階段廊下ユニット【段十廊Ⅱ】
【AFOLA】ノンスリップシリーズ
螺旋階段
特殊階段【らせん階段】
ウェブネット(Jakob)