防水立上り保護工法『エフグード』
公共建築協会認定品!断熱・結露防止・遮音などに優れた効果を発揮します
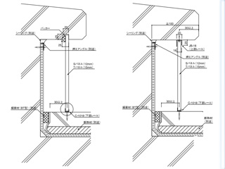
製品画像・施工事例
会社情報
■ 白水興産株式会社の取扱製品
■ この製品を資料請求した人はこれらの製品も資料請求しています
■ このカテゴリの他の製品








ニュースリリース
かたなび
ショールームナビ
すまいりんぐ
設計士インタビュー
メーカーインタビュー
プロジェクトストーリー
建材動画チャンネル
建築何でもQ&A
販売・施工代理店募集




