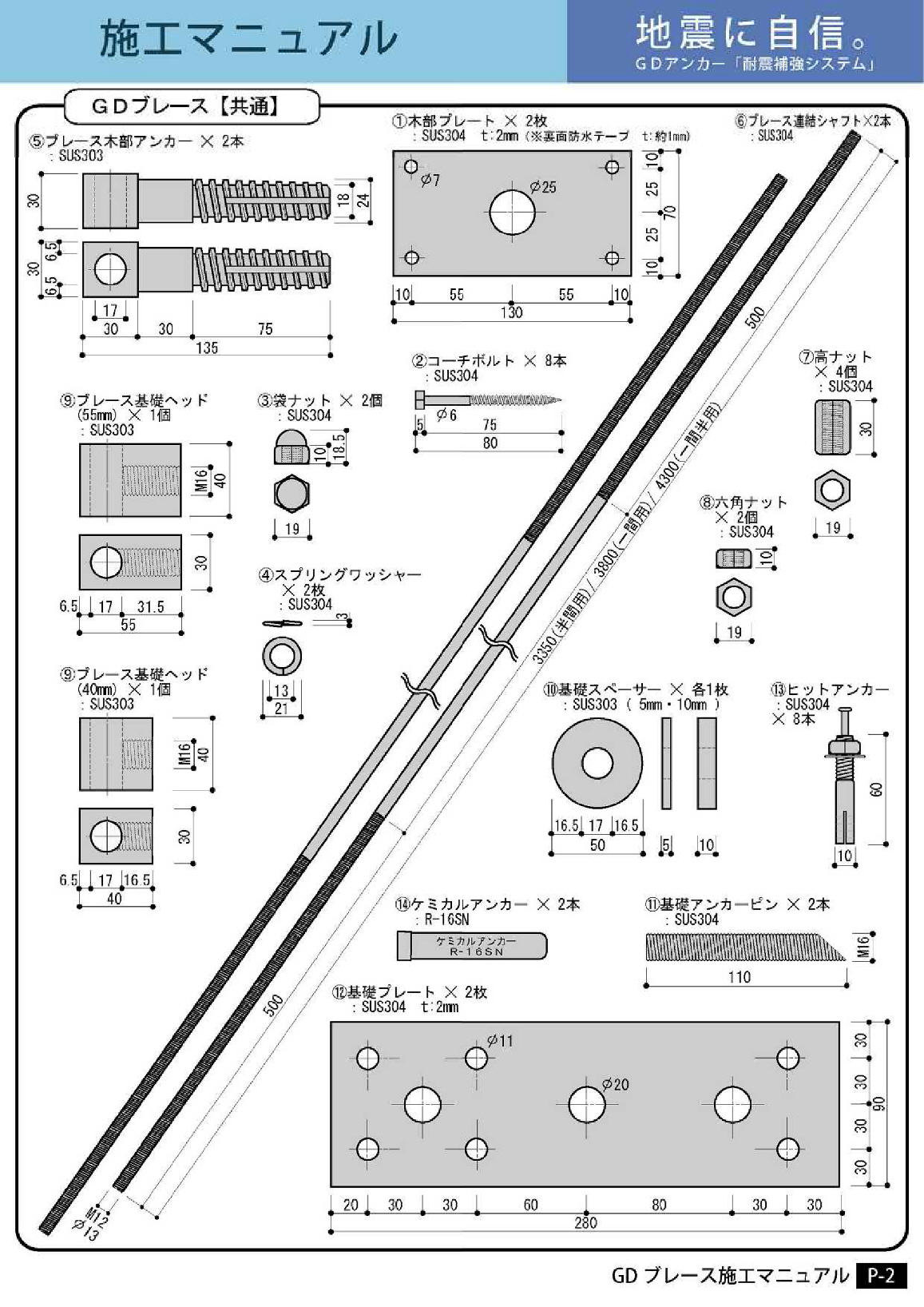
GDブレース(耐震壁補強)
外付けタイプのステンレス製筋交い金物
桁(梁)と基礎をしっかり緊結します。
桁(梁)と基礎をしっかり緊結します。
製品画像・施工事例
会社情報
■ グランデータ株式会社の取扱製品
■ この製品を資料請求した人はこれらの製品も資料請求しています
■ このカテゴリの他の製品








ニュースリリース
かたなび
ショールームナビ
すまいりんぐ
建材ナビジャーナル
建材動画チャンネル
建築何でもQ&A
販売・施工代理店募集



